Este site utiliza cookies para permitir a mudança de língua e o armazenamento dos seus imóveis favoritos. Ao utilizar este site, concorda que o mesmo utilize cookies.

Apartamento T1 Centro de Machico

315.000€



Referência

30

Natureza

Venda

Tipo de Imóvel

Apartamento

Tipologia

T1

Estado

Em Construção

Certificado energético

A+

Ano

2026


Distrito

Madeira

Concelho

Machico

Freguesia

Machico

Código Postal

9200


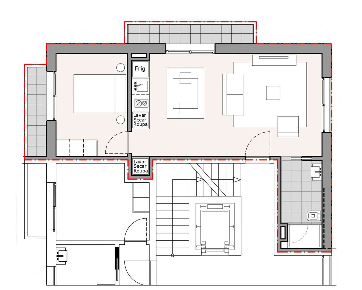
Área Útil

55 m2

Área Bruta

116 m2

Área de Terreno

0 m2

Partilhar



Contactar Imobiliária

*Preenchimento obrigatório
Ao clicar em 'Enviar', declara que aceita a nossa Política de Privacidade.
Apartamento T1 de Excelência no Coração de Machico

Descubra este magnífico apartamento T1, localizado no centro de Machico, numa zona privilegiada que combina comodidade, elegância e qualidade de vida.

Inserido num edifício de construção superior, este imóvel destaca-se pelos acabamentos de elevada qualidade e pela atenção ao detalhe em cada espaço.
A cozinha moderna, totalmente equipada com eletrodomésticos Bosch, reflete sofisticação e funcionalidade, ideal para quem valoriza o conforto no dia a dia.

Viver no centro de Machico é desfrutar da proximidade de serviços, comércio local, restaurantes e das belas praias que caracterizam esta encantadora cidade.

Se procura um lar onde a qualidade e a localização se unem em perfeita harmonia, este é o apartamento certo para si.
Geral
GeraisRés do chão:Sim
GeraisNº de Casas de Banho:1
GeraisNº de Terraços:1
CaixilhariaAluminio:Sim
CaixilhariaVidro Duplo:Sim
GaragemLugar exterior:Sim
CozinhaPlaca:Sim
CozinhaForno:Sim
CozinhaExaustor:Sim
CozinhaMicro-ondas:Sim
CozinhaFrigorífico:Sim
CozinhaMáquina de lavar loiça:Sim
CozinhaMáquina de lavar roupa:Sim
PavimentoPiso vinílico:Sim
ClimatizaçãoBomba de calor:Sim

Este imóvel não tem áreas definidas.